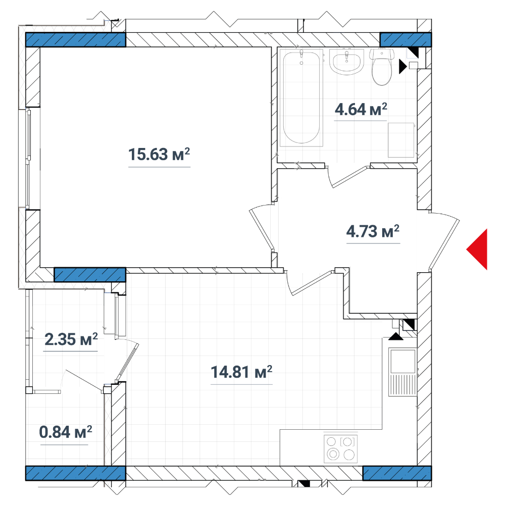
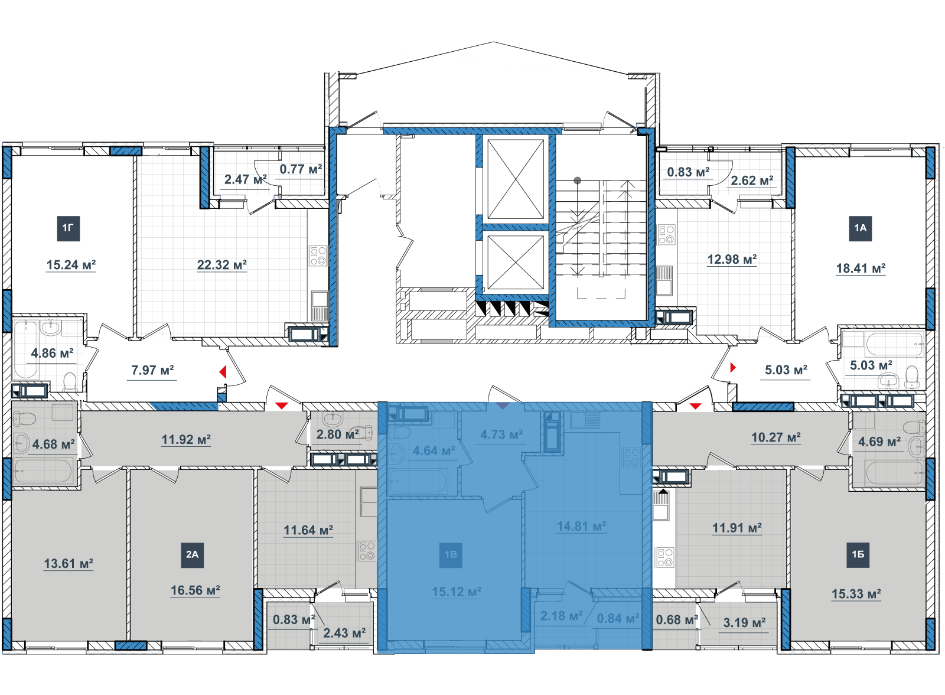
One-room apartment 1V5

2
House
8
Section
18
Floor

1

2

3

4

5

6

Similar lay-outs

Watch all
Twoo-room apartment 2А13
One-room apartment 1А4
Twoo-room apartment 2B9
Three-room apartment 3A1
One-room apartment 1G1
One-room apartment 1D2