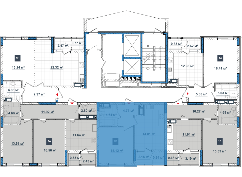
Однокомнатная квартира 1В4

2
Дом
8
Секция
5
Этаж

1

2

3

4

5

6

Похожие планировки

Смотреть все
Двухкомнатная квартира 2А13
Однокомнатная квартира 1А4
Двухкомнатная квартира 2Б9
Трехкомнатная квартира 3A1
Однокомнатная квартира 1Г1
Однокомнатная квартира 1Д2